7077 Beggs Road
Bedrooms
3
Bathrooms
2
Home Size
1800
sqft.
Lot Size
2.31
acres
$
Listing by:
Karen Bennett
at
Bennett Family Real Estate
Home Video Tour
Property Description
Experience Kootenay living with this 3-bedroom, 2-bathroom home situated on a sprawling 2.31-acre property on the quiet, sought-after Beggs Road in Balfour. Offering 1,800 square feet of finished living space, the home is defined by a spectacular main living area featuring soaring vaulted ceilings and dramatic floor-to-ceiling, south-facing windows that flood the interior with natural light and frame the lush outdoor scenery. A cozy wood stove serves as the heart of the home, providing an efficient and atmospheric heat source for those crisp mountain evenings. The living space flows seamlessly onto an expansive, sun-drenched wrap-around deck, providing an unparalleled venue for morning coffee or alfresco dining. Your vehicles and gear are well-protected by a double attached carport, while the grounds are a gardener’s dream, featuring lush lawns and vibrant garden beds. Total privacy is guaranteed by a perimeter of large, mature trees, creating a park-like oasis just minutes from world-class golf and Kootenay Lake access. The property is further enhanced by multiple storage sheds and a secondary patio tucked away in the yard, perfect for a fire pit or quiet reflection. Whether you are soaking up the sunlight inside or exploring the meticulously kept grounds, this property offers a rare combination of space, sunshine, and seclusion. This is more than just a home; it is a private Kootenay retreat ready for its next chapter. (id:60292)
KEY INFORMATION
Property Type:
Single Family
Ownership:
Freehold
Built:
1988
Parking:
6
parking spaces
PRACTICALITIES
CONSTRUCTION:
FOUNDATION:
EXTERIOR FINISH:
FLOORING:
APPLIANCES:
WATER:
Creek/Stream, Licensed
BASEMENT:
ROOF:
HEATING TYPES:
Forced air
SIZES & DIMENSIONS
HOME SIZE:
1800
square feet
LOT SIZE:
2.31
acres
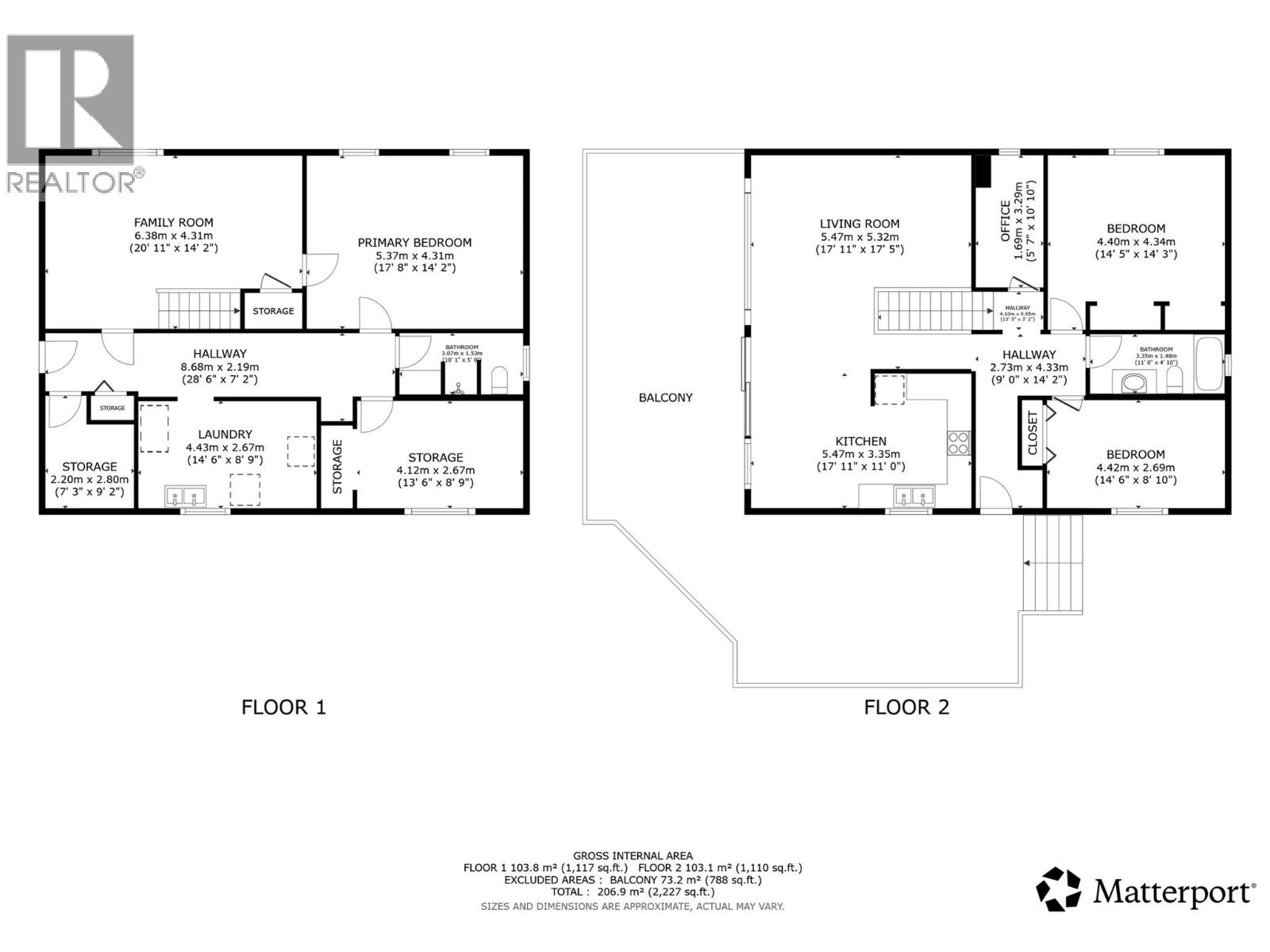
ABOVE
LOWER LEVEL
Full bathroom 5' x 10'1''
Storage 8'9'' x 13'6''
Laundry room 8'9'' x 14'6''
Storage 9'2'' x 7'3''
Bedroom 14'2'' x 17'8''
Family room 14'2'' x 20'11''
MAIN LEVEL
Full bathroom 4'10'' x 11'
Bedroom 8'10'' x 14'6''
Office 10'10'' x 5'7''
Primary Bedroom 14'3'' x 14'5''
Kitchen 11'0'' x 17'11''
Living room 17'5'' x 17'11''


The trademarks MLS®, Multiple Listing Service® and the associated logos are owned by The Canadian Real Estate Association (CREA) and identify the quality of services provided by real estate professionals who are members of CREA.

Always available to you
Call me at any time with your questions, whether buying, selling, or just exploring for the future.
Contact Luke Now

























